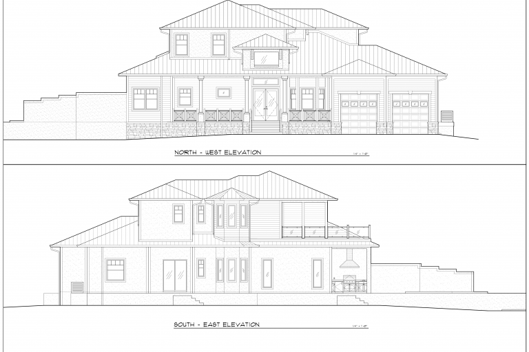
DK Residence – Punta Gorda
Project Overview Description of this project and the details will be posted soon. Please check back. If you have question on this project, or any of the projects please give us a call. Our team is ready to help you through your next project.






