Project Overview
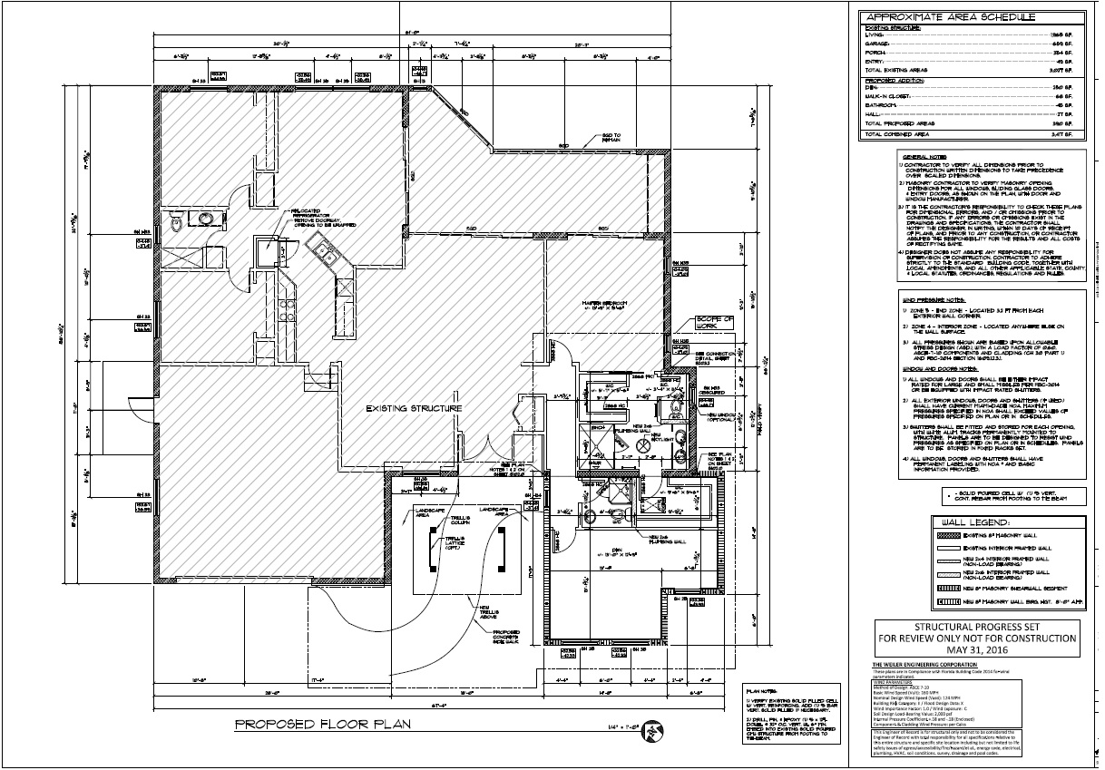
Description of this project and the details will be posted soon. Please check back. If you have question on this project, or any of the projects please give us a call. Our team is ready to help you through your next project.
Constructed
Canal Lot
Interior remodel and addition – add bedroom, re design master suite including master bath, new kitchen.













