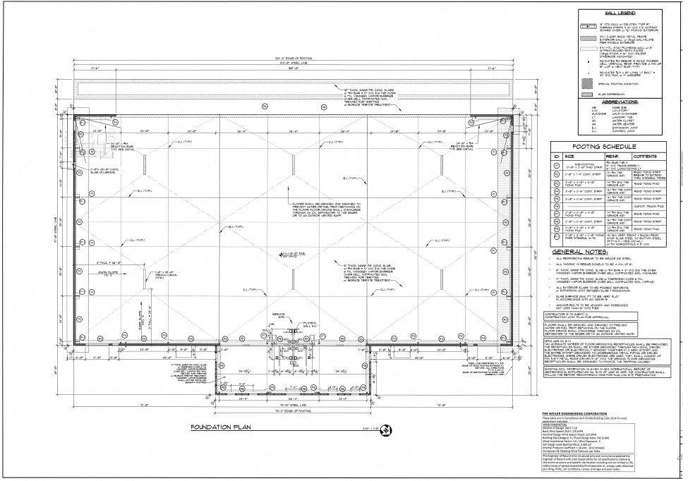
Project Overview
- 2,373 square feet of office space &
- 26,552 square feet for a G-650 airplane
- 100,000 # point load rated slab
Description of this project and the details will be posted soon. Please check back. If you have question on this project, or any of the projects please give us a call. Our team is ready to help you through your next project.












